|
Vendida
Tipo de Propiedad: Multi-familiar
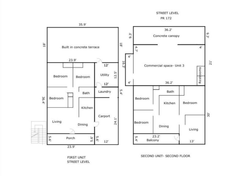
Excelente propiedad Multifamiliar, perfecta para inversión, consta de 3 Unidades incluido un local comercial. Posee contadores Independientes 3 AAA/ 3 LUMA y Zonificación Comercial C-1
-Primera Unidad (Primer Nivel): Consta de 3 habitaciones, 1 baño, sala, cocina, comedor, balcón, laundry y marquesina. Área: 869.76 SQ FT
Rentada Sección 8: $722
-Segunda Unidad (Segundo Nivel): Consta de 2 habitaciones, 1 baño, sala, cocina, comedor, laundry y balcón. Área: 960.72 SQ FT
Rentada Sección 8: $593
-Local Comercial (hacia la Ave. 172): Cuenta con un área de 825.4 SQ FT
Rentada: $700
¡¡No pierda esta increíble oportunidad de inversión!!
¡Haga su cita hoy mismo! SOMOS SU ALTERNATIVA SEGURA ✅ |
Vendida
|
|
CONTACTE A: Best Properties Realty Group
|
Formulario de Contacto
|




